Tag: Foxrock
7 Posts
Line Dancing For Beginners Is Back! For One Night Only
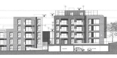
Planning Permission Saught for 45 Apartments Opposite Foxrock Church
All That Fall – “Beckett In Foxrock”
Cabinteely History – Foxrock Train Station
Line Dancing For Beginners – Tullow Parish Hall, Brighton Rd, Foxrock
