
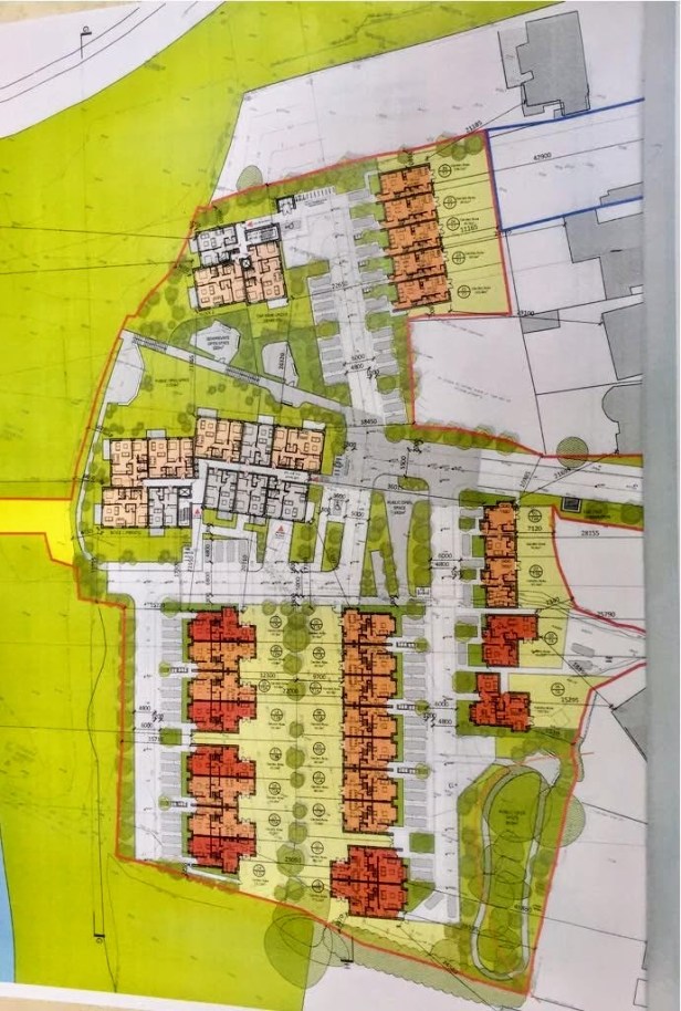
Dlrcc have granted planning permission for a residential development of 72 units at Ards Cartref at Old Bray Road, Cabinteely Village.
Planning Reference D18A/0551






Dlrcc have granted planning permission for a residential development of 72 units at Ards Cartref at Old Bray Road, Cabinteely Village.
Planning Reference D18A/0551




